“Topmodern und ökologisch Leben, in Wees! Massiv gebautes EFH zu verkaufen!”
Baujahr: 2023
Haustyp: Einfamilienwohnhaus mit Satteldach, Carport, Terrassen, Pool, Wärmepumpe und Dach-Photovoltaikanlage
Massivbau mit Außenverkleidung: Sibirische Lärche
Effizienzhaus-Standard: KfW 70
Provisionszahlung des Verkäufers und des Käufers: Jeweils 2,38 % des Kaufpreises einschl. gesetzlicher MwSt., fällig bei Abschluss des notariellen Kaufvertrages.
Grundstück: ca. 828 m²
Geschosse: 2
Wohnfläche: 170,49 m² Raumhöhe 2,52 m
Nutzflächen: ca. 48 m² Carport u. Abstellraum, 48 m² ausgebaute Nutzfläche im Spitzboden
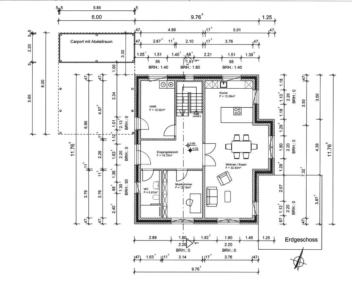
Erdgeschoss: Wohnfläche im EG ca. 92,24 m² bestehend aus Eingangsbereich mit Zugang zum Treppenhaus und zu weiteren Räumen, wie dem Wohn- und Essbereich und von dort Übergang zur hervorragend ausgestatteten, perfekt designten offenen Küche des Markenherstellers „LEICHT“ mit Induktionsherd, hüfthohem Backofen und Geschirrspüler nebst Spüle, Hauswirtschaftsraum mit Wärmepumpe und Steuerung für die eigene PV-Anlage, Gäste-WC mit Dusche und Gästezimmer, unter der Treppe in das OG- kleine abgetrennte Lagerfläche zum Lagern von Wein o.ä.
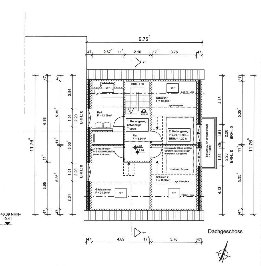
Obergeschoss: Wohnfläche im DG ca. 78,25 m², bestehend aus zwei Schlafräumen die jeweils einen Zugang zum Balkon bieten, weiteres Schlafzimmer angrenzend am großem Masterbad mit Dusche, Badewanne und WC sowie Zugang zum ökologisch begrünten Dach des Carports, das sich als naturverbundener Ruhebereich auch zum Aufenthalt für schöne entspannte Stunden in der Sonne anbietet.
Ausgebauter Spitzboden: Hier wurden drei Räume nebst einem praktischen Abstellraum, zusätzlich zu der schon reich bemessenen Gesamtfläche realisiert. Zugang über jeweilig separate Holztreppen von den drei Schlafzimmern im DG aus. Raumhöhe >2m = ca. 15,34 m² Raumhöhe bis 2 m 8,78 m² (50%) anteilig bedingt durch die Raumhöhe. Gesamte ausgebaute Fläche ca. 48 m²
Bodenbeläge: Hochwertige gebürstete Eiche im Eingangsbereich sowie im Wohn-Essbereich, Fliesen in Küche und Bädern, blauer Vorwerk-Teppichboden in weiteren Räumen
Fenster: Aus Kunststoff gefertigt und dreifach verglast
Elektrische Rollläden: In allen Schlafräumen (Gästezimmer EG, in den drei Schlafräumen des DG und in den drei ausgebauten Räumen des Spitzbodens)
Elektrische Außen-Lamellen-Rollläden: Im Wohnraum u. Küchenbereich
Internet / TV: Anschluss an das Glasfasernetz der Stadtwerke Flensburg / Sat-Anlage am Carport
EDV-Anschlüsse: Jeweils einzelne Netzwerkanschlüsse in den Schlafräumen, zwei im Wohnbereich
Heizung: Geothermie-Wärmepumpe mit programmierbarer Wasserzirkulation
Dachflächen-Photovoltaik-Anlage mit Energiespeicher
Leistungsdaten der Anlage: 6,4 kW
Speicher: 6 kW
Pool: 8 x 3,5 m Tiefe: ca. 1,50 m mit entfernbarer Abdeckung
Regenwasserzisterne: 5000 Liter
Wall-Box: Anschlusskabel für die zukünftige Installation einer Wall-Box sind im Carport schon verlegt
Doppelcarport mit Abstellraum: Offener Carport mit Abstellmöglichkeit für zwei PKW, Anschlussmöglichkeit für eine zukünftige Wallbox, Abstellraum, begehbares Dach mit natürlicher Bepflanzung
Terrassenbereiche: Große Terrasse nah dem Poolbereich, Größe ca. 28 m², kleine Terrasse mit Sitzgelegenheit vor Haupteingang, mit ca. 100 Kg / m² begehbare Dachfläche des Carports
Zusätzliche Stellplätze für PKW: Vorhanden, Einfahrt ausgestattet mit Kies
Objektzustand: Sehr gut, Neubau 2023
Energieausweis: 32,4 kWh/(m²·a)
Besichtigung: Nach Absprache mit den Eigentümern
Übergabe: Kurzfristig möglich
Objektbeschreibung:
Hier finden Sie ein erst im Jahre 2023 meisterlich geschaffenes, klug und ökologisch wertvoll und massiv erbautes und mit großzügiger Wohnfläche ausgestattetes Einfamilienhaus. Befindlich in einer erst im Jahre 2022 völlig neu konzipierten Wohnanlage im schönen Ostseeort Wees, gleich nahe der reizvollen Stadt Glücksburg und in der unmittelbaren Nachbarschaft zum Oberzentrum Flensburg gelegen. Wees, die moderne Stadtrandgemeinde bietet hier ein bevorzugtes Wohngebiet mit hoher Lebensqualität für stadtmüde Familien, die aber auch die Nähe zu mannigfaltigen gewerblichen Angeboten, landwirtschaftlichen Betrieben und zur nah gelegenen Stadt Flensburg nicht missen möchten. Wees ist, wie alle Gemeinden des Amtes Langballig, staatlich anerkannter Erholungsort und wahrlich ein Eldorado für Naturfreunde, Spaziergänger und Radfahrer. Besonders erwähnenswert ist das als FFH-Gebiet ausgewiesene Blixmoor, sowie die hier auch zu findenden Wälder von Flensburg und Glücksburg, die von Einwohnern, Naturfreunden und Besuchern sehr geschätzt werden. Wees ist mit knapp 2400 Einwohnern die größte Gemeinde des Amtes Langballig.
Dieses Objekt bietet seinen neuen Eigentümern viel Platz für eigene Ideen und Hobbys und gibt der Familie Lebens- und Erholungsraum, in einer der schönsten Landschaften Schleswig-Holsteins, dem Naturraum Angeln.
Beim Besichtigen dieses Objektes fällt sofort die gerade hier besonders vorhandene ökologische Ausrichtung des massiv errichteten Bauwerks und der Außenanlagen auf. Durch die große helle und gemütliche Wohnraumgestaltung, die luxuriöse Ausstattung und den schönen Pool im Außenbereich, weiß dieses Objekt zusätzlich noch durch die eigene Energieerzeugung auf dem Dach des Wohngebäudes und durch den Einbau einer hochmodernen Erdwärmepumpe, verbunden mit sehr geringen Energieverbrauchskosten zu überzeugen. Hier lassen sich eigene Wohnträume leicht umsetzen und man fühlt sich schon bei der ersten Besichtigung des Objektes zuhause und möchte gerne länger verweilen.
Durch den das Haus umgebenden Garten kann man sich das ganze Jahr an der Natur erfreuen und die Außenterrasse mit ihrem herrlichen Blick in die schöne Umgebung und auf die eigene Pool-Anlage garantiert ein besonderes Wohngefühl, hier, bei uns im Norden. Dieses Objekt bietet seinem neuen Eigentümer ein schönes Heim mit einem gepflegten sauberen Umfeld und besticht mit einladenden, großzügigen und besonderen Räumlichkeiten. In der unmittelbaren Nachbarschaft befinden sich weitere hochwertige Wohnimmobilien und schöne gepflegte Gärten. Das Objekt liegt in einer kleinen, ruhigen, neu und frisch anmutenden separaten Wohnanlage mit eigener Zufahrt und bietet auch Familien mit Kindern ein verkehrssicheres Umfeld.
Das hochwertige, erst 2023 erbaute Hauptgebäude und der Gartenbereich, bewusst pflegeleicht gestaltet und ausgestattet mit einem gemütlichen Terrassenbereich und Swimming-Pool sowie die bevorzugte Wohnlage in Wees, ganz in der Nähe von Flensburg, wird Sie einfach nur begeistern!
Das Gebäude, die besonderen Ausstattungsmerkmale der Wohnräume und der hübsche Garten bieten ein hochwertiges Ensemble, das nur selten zu finden ist. Wer das Besondere sucht, wir hier fündig.
Wees ist eine lebens- und familienfreundliche Gemeinde, die einen hohen Wohn- und Freizeitwert bietet. Die Gemeinde liegt nahe der Ostsee zwischen Flensburg und Glücksburg im Kreis Schleswig-Flensburg, im schönsten Bundesland Deutschlands, Schleswig-Holstein. Wees grenzt an die beiden Flensburger Stadtteile Mürwik und Engelsby sowie dessen Stadtbezirk Vogelsang. Nördlich liegt der Ort Glücksburg. Wees ist heutzutage mit Flensburg eng verflochten und gilt als Flensburger Vorort.
Neben dem Hauptort Wees, liegen Oxbüll, Rosgaard, Ulstrup, Ulstrupfeld und Weesries im Gemeindegebiet. Direkt südlich des Hauptortes Wees liegen zudem der kleine Ort Himmershoi und der Ortsteil Wees-Bahnhof. Nördlich vom Hauptort liegen des Weiteren das kleine Büllemoos sowie Rothenhaus. Die
Gemeinde hat einen hohen Wohn- und Freizeitwert. Hier finden die Einwohner ein attraktives, lebenswertes und begehrtes Wohnumfeld. In der Gemeinde Wees in Munkbrarup gibt es auch für Familien mit Kindern interessante Angebote, wie z.B. die Kindertagesstätte Munkbrarup, die derzeit 149 Kinder in 9 Stammgruppen betreut, sowie eine Grundschule die in 10 Klassen aufgeteilt ist. Auch ein nachmittägliches Betreuungsangebot in der Woche bis 15:30 Uhr und am Freitag bis 14:30 Uhr wird angeboten. Weiterhin verfügt die Schule über einen Sportplatz, eine große Sporthalle, eine Turnhalle, ein Lehrschwimmbecken und viele Fachräume nebst PC-Raum. In der Nähe gibt es natürlich auch viele Einkaufsmöglichkeiten, wie die Supermärkte von Aldi und Lidl, sowie einen Optiker, eine Apotheke und weitere Gewerbebetriebe.
Auch das benachbarte Glücksburg ist eine familienfreundliche Gemeinde und bietet einen hohen Wohn- und Freizeitwert. Neben dem Strand Sandwig gibt es weitere Strände in den Ortsteilen Meierwik und Holnis, sowie die Fördelandtherme, die neue Promenade, die Yachthäfen und das Wasserschloss Glücksburg, das eines der bekanntesten Sehenswürdigkeiten Schleswig-Holsteins darstellt. Es beherbergt ein Museum und ist für Besucher zugänglich. Auch ein empfehlenswertes Café mit Außenterrasse ist hier zu finden.
Verkehrsanbindung:
Die Autobahn A 7, die Dänemark mit dem Allgäu verbindet, ist nur ca. 4 Kilometer von Wees entfernt. Sie erlaubt uns schnell Richtung Norden oder Süden zu reisen. Aber auch als Bus, Bahn- und Flugreisender ist man gut vernetzt und kann den Flensburger Bahnhof, wie auch den Privat-Flugplatz „Schäferhaus“ von Wees aus mit dem Bus oder Auto in wenigen Minuten leicht erreichen.
Allgemeines:
Alle Angaben in dieser Objektbeschreibung wurden sorgfältig und so vollständig wie möglich gemacht. Gleichwohl kann
das Vorhandensein von Fehlern nicht ausgeschlossen werden. Die Angaben in dieser Objektbeschreibung erfolgen daher ohne jede Gewähr. Maßgeblich sind die im Kaufvertrag enthaltenen Regelungen/geschlossenen Vereinbarungen. Soweit die Grundrissgrafiken Maßangaben und Einrichtungen enthalten, wird auch für diese jegliche Haftung ausgeschlossen. Tatsächliche Abweichungen sind möglich. Ebenso weisen wir darauf hin, dass die Grundrissgrafiken nicht immer maßstabgetreu sind. Zwischenverkauf und Preisänderungen bleiben ausdrücklich vorbehalten. Besichtigungen sind nur nach vorheriger Absprache mit dem Anbieter möglich. Die Übergabe des Objektes kann kurzfristig erfolgen.



















































